PokerKing

½Ó´ý»á¼ûPokerKing¹Ù·½ÍøÕ¾£¡

ÐÐÒµÐÂÎÅ

±ü³Ö׿á³ÖÆ·ÖÊ¡¢ÔðÈΡ¢¾«Ð¡¢Ö´×ŵÄÀíÄÖÂÁ¦³ÉΪÄúÖª×ãµÄÏàÖúͬ°é

ÄúÄ¿½ñËùÔÚµÄλÖãºÊ×Ò³ > ÐÂÎÅ×ÊѶ > ÐÐÒµÐÂÎÅ

ÖÕÓÚ×°ÐÞÍ깤£¬È̲»×¡É¹É¹£¬È«Îݶ¨Öƹñ×ÓºÜÖª×㣬µçÊÓÇ½ÌØÊâÊÊÓà Ðû²¼Ê±¼ä£º2023-05-11   ä¯ÀÀ£º1037´Î
ÖÕÓÚ×°ÐÞÍ깤£¬È̲»×¡É¹É¹£¬È«Îݶ¨Öƹñ×ÓºÜÖª×㣬µçÊÓÇ½ÌØÊâÊÊÓÃ

¡¡¡¡ÎÒ¼ÒÕâÌ×оÓÊǽ»¸øÔÚ×°ÐÞ¹«Ë¾×öÉè¼ÆÊ¦µÄ±í¸ç×°ÐÞ£¬Ö÷²Ä¶¼ÊÇÀϹ«ÈÏÕæÂòµÄ£¬Æ½Ê±ÎÒÓÐʱ¼äÒ²»áµ½¹¤µØ¼à¹¤¡£´ÓÆßÔÂÖÐÑ®¿ª¹¤µ½ÏÖÔÚ£¬ÖÕÓÚ×°ÐÞÍ깤£¬ÖµµÃ˵µÄ¾ÍÊÇÈ«Îݶ¨Öƹñ×ÓºÜÖª×㣬¼ÒÀïµÄЬ¹ñ°¡¡¢Ò¹ñ°¡¡¢¾Æ¹ñµÈµÈ×ö³öÀ´µÄЧ¹ûºÜƯÁÁ¡£Éè¼ÆµÄ¿ÍÌüµçÊÓÅä¾°Ç½ÌØÊâÊÊÓ㬼ÒÀï°ëµã¿Õ¼ä¶¼Ã»ÓÐÆÌÕÅ£¬È̲»×¡¸ø¸÷ÈËɹɹ£¡

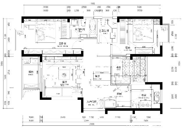
¡¡¡¡ÕâÊÇÎÒÃÇµÄ¼Ò¾ßÆ½Ãæ°²ÅÅͼ£¬±í¸çƾ֤ÎÒÃǵÄÐèÇóÉè¼Æ³öÀ´µÄ£¬ÕûÌåµÄ½á¹¹¶¼½ÏÁ¿ºÏÀí£¬ºÜϲ»¶¡£

¡¡¡¡ÕâÊÇÎÒÃǼҵÄÈ뻧Ь¹ñ£¬Ð¬¹ñ·ÖΪÉÏÏÂÁ½²ã£¬ÖÐÐÄÁô¿ÕλÖÃ˼Á¿µ½·Å¼ÒÀïµÄÔ¿³×¡£Ð¬¹ñÏÂÃæÒ²ÊÇÁô¿ÕλÖã¬Æ½Ê±³£´©µÄЬ×Ó£¬¾Í¿ÉÒÔÖ±½Ó·ÅÏÂÃæÁË¡£Ð¬¹ñÊǶ¨ÖƵÄ£¬¹ñÃÅ»¹Ã»ÓÐ×°ÖõÄЧ¹û£¬¹¤ÈËÊÇÔÚÊ©¹¤ÄØ£¡

¡¡¡¡Ð¬¹ñÖÐÐÄ×öÁ˹ҹ³£¬Æ½Ê±¿ÉÒÔ¹ÒһЩСµÄ°ü°ü£¬»òÕßñ×ÓºÜÀû±ã¡£

¡¡¡¡ÖØÐ¾ӿª¹¤ÄÇÌìÆð£¬¾ÍÒ»Ö±ÅÎÔ¸×ÅÄÜÔçµã×°ÐÞÍ깤£¬ÏÖÔÚÖÕÓÚ×°ÐÞÍ깤ÁË£¬×Åʵ¿ªÐİ¡¡£Õâ±ßÊÇÈë»§½øÀ´µÄÊӽǣ¬ÓÒ±ßÊÇЬ¹ñ£¬ÔÙÍùÄÚÀï¾ÍÊDzÍÌü£¬ÎÒÃǼҾÍÊÇÕâÑùµÄ»§ÐÍÃûÌá£È«ÎݵØÃæ³öÁ˳ø·¿£¬ÎÀÉú¼äºÍÑǫ֮̂Í⣬ÆäËûµÄ¿Õ¼äµØÃæ¶¼ÊÇÆÌľµØ°å£¬±È´ÉשµÄЧ¹ûƯÁÁ¶àÁË¡£

¡¡¡¡Õâ±ßÊDzÍÌü£¬²Í×ÀÊÇ¿ÉÒÔÕÛµþÆðÀ´µÄÄÇÖÖ¡£Æ½Ê±¼ÒÀïûÓпÍÈËÀ´µÄʱ¼ä£¬ÎÒÃǾÍʹÓ÷½ÐεIJÍ×À£»¼ÒÀïÀ´¿ÍÈË£¬È˶àµÄʱ¼ä¾Í¿ÉÒÔŪ³ÉÔ²ÐεÄ£¬ÌØÊâÀû±ã¡£²Í×ÀÒÎÊDz¼ÒÕ»¨ÎÆ£¬ºÜÊÇÆ¯ÁÁ£¬×ø×ÅÒ²ºÜã«Òâ¡£

¡¡¡¡ÏëÒªÔ²ÐεIJÍ×ÀÏԵøü´óÆøÒ»Ð©£¬ÌØÊâÊǶ¬Ìì´òů¹øµÄʱ¼ä¾Í½ÏÁ¿Àû±ãÁË£¡ºóÃæ×öÁËÒ»¸öµñ»¨×è¶ô£¬×Åʵ¾ÍÊǵ±³õÎÀÉú¼ä£¬ÃÅÕý¶Ô×ŲÍÌü£¬ºÜÊÇÆ¯ÁÁ£¬²¢ÇÒÒ²ºÜÊÊÓᣵñ»¨ÊÇÔÚÍâÃæ¶¨ÖƵÄ£¬ÖÊÁ¿ºÜ²»´íÄØ£¡

¡¡¡¡²Í×ÀÉϰ²ÅÅһЩÈí×°£¬Ð§¹ûºÜÓвã´Î¡£×Åʵ±í¸çÊÇΪÁ˵ִï¸üƯÁÁµÄЧ¹û£¬ÌØÒâ°²ÅŲÍ×ÀÉÏÕâЩ¹¤¾ß×ö×°ÊΡ£

¡¡¡¡Ð¾Ó×°ÐÞ¼òÅ·Æø¸Å£¬ÌØÊâϲ»¶²Í×ÀÉϵĻ®·Ö£¬ÂÌÉ«µÄºÜÊÇÆ¯ÁÁ£¡

¡¡¡¡Õâ±ßÊÇ¿ÍÌü£¬´°Á±ºóÃæÓÐÒ»¸ö×ÔÁ¦µÄÉúÑÄÑǫ̂£¬²É¹âÌØÊ⸻×㣬¿Õ¼äÏÔµÃÒ²½ÏÁ¿´óÆøÒ»Ð©¡£Å·Ê½µÄ¿ÍÌü¼Ò¾ßºÜÊÇ´óÆø£¬µØÃ滹·Å×ŵØÌº£¬ºÜÊÇÓвã´Î¡£

¡¡¡¡¿ÍÌüµçÊÓÅ侰ǽ´òÂú¹ñ×ÓÌØÊâÊÊÓã¬Ë¼Á¿µ½ÎÒÃǼҵÄÃæ»ý½ÏÁ¿Ð¡Ò»Ð©£¬²¢ÇÒÈ«ÎݵĹñ×Ó¶¼ÊǶ¨ÖƵÄ£¬ÒÔÊÇ¿ÍÌüµçÊÓÅ侰ǽҲÊǶ¨ÖÆÁ˹ñ×Ó£¬ÖÐÐÄÁô¿ÕλÖÃǡǡ¿ÉÒԷŵçÊÓ»ú¡£ÒÔºóÈëסоÓÁË£¬ÓÐÕâÑùÒ»¸öºÜÊÇ´óµÄ¹ñ×Ó£¬¿ÉÒÔÌṩÂù²»´íµÄ´¢Îï¿Õ¼ä£¬ÎÒÃÇҲûÓÐÐëÒªµ£ÐÄÒÔºóÈëסоÓ£¬µ£ÐÄûÓйñ×Ó¶ø×°¹¤¾ß¶ø°ÃÄÕÁË£¡

¡¡¡¡¿ÍÌüµçÊÓÅ侰ǽ×öÁ˹ñ×ÓʽµÄ£¬¼È¿ÉÒÔÌṩ´¢Îï¿Õ¼ä£¬²¢ÇÒ»¹¿ÉÒÔµ±×öÅ侰ǽʹÓá£Ò»Ð©»¹Ã»ÓÐ×°ÐÞµÄÅóÙ­¹ýÀ´ÂÃÐУ¬¼ûµ½ÎÒÃǼҿÍÌüµçÊÓÅ侰ǽ×öÂúÁ˹ñ×Ó£¬¶¼ºÜÏÛĽ¡£ÓеÄÁÚÈË»¹ËµÒÔºó¼ÒÀïµÄµçÊÓǽ£¬Ò²ÒªÑ§ÎÒ¼ÒÕâÑùÄØ£¡È«ÎݵĹñ×Ó¶¼ÊÇÔÚÍâÃæ¶¨ÖƵÄ£¬°üÀ¨ÏÖÔÚÕâ¸ö¿ÍÌüµçÊÓÅ侰ǽµÄ¹ñ×Ó£¬ÌØÊâÖª×ã¡£

¡¡¡¡Õâ±ßÊÇ¿ÍÌüºÍ²ÍÌüÈ«¾°Ð§¹û£¬ÕûÌåµÄ¶¼ºÜÊǺÏÀí£¬Ò»ÑÛÍûÈ¥Öª×ã¾ÍÊÇ¿ÍÌüµçÊÓÅ侰ǽµÄÉè¼Æ£¬¼ÒÀï°ëµã¿Õ¼ä¶¼ÉáµÃ²»µÃÆÌÕŰ¡¡£

¡¡¡¡Ð¾ӵÄÈí×°£¬ÀϹ«¶¼ÊÇÆ¾Ö¤±í¸çµÄ½¨ÒéÈ¥ÂòµÄ£¬Âò»ØÀ´Ö®ºó±í¸ç×Ô¼º´îÅ䣬˵×Åʵ»°µÄÕæµÄÐÁÇÚËûÁË£¡É³·¢Ç½ÉϹÒ×ÅÈý·ù×°Êλ­£¬ºÜÊÇÆ¯ÁÁ£¬ÓëÕû¸ö¿Õ¼ä¶¼ºÜ´îÅäÄØ£¡

¡¡¡¡Õâ±ßÊÇ´ÎÎÔ£¬¸øÅ®¶ù×¼±¸µÄ·¿¼ä¡ £¿Õ¼ä½ÏÁ¿Ð¡£¬×öÁËÒ»¸öºÜÊÇÊÊÓõÄé½é½Ãס£é½é½Ã×Ò²ÊǶ¨ÖƵÄ£¬ÌØÊâÖª×㣬ÖÊÁ¿Óë×ö¹¤¶¼ºÜ²»´í¡£

¡¡¡¡´²±»Ì×ÀàËÆÒ»¸öС°×ÍõÄÔìÐÍ£¬·Ç³ £¿É°®¡£

¡¡¡¡Õâ±ßÊÇ´ÎÎÔ£¬°×É«µÄÒ¹ñÒ²ÊǶ¨ÖƵÄ£¬ÎÒÃǶ¼ºÜϲ»¶¡£Ò¹ñÉÏÃæ×öÁËÖÐ Ñë¿Õµ÷£¬Ê¹ÓõÄʱ¼ä½ÏÁ¿Àû±ã¡£¶¥ÃæÌùʯ¸àÏßÌõ¡£

¡¡¡¡ÓиöÆ®´°Âù²»´íµÄ£¬²É¹âÒ²½ÏÁ¿ºÃ£¡Æ®´°ÉÏÃæ·Å×Å×øµæ£¬ÒÔºóÈëסÁË¿ÉÒÔ×øÔÚÆ®´°ÉÏ¿´Ê飬»òÕßÍæÍæÊÖ»ú¡£

¡¡¡¡Õâ±ßÊÇÖ÷ÎÔ£¬ÎÒºÍÀϹ«µÄ·¿¼ä¡£ÎÔÊÒµÄ×°ÐÞ¶¼ÊÇÒ»ÑùµÄ£¬Óұ߶¨ÖÆÁËÒ»ÅźÜÊÇ´óÆøµÄÒ¹ñ£¬´¢Îï¿Õ¼äÌ«¸»×ãÀ²£¬ÏÔµÃÒ²ºÜ´óÆøÄØ£¡´²Í·Å侰ǽ¹Ò×ÅÎÒÃǵÄ×°Êλ­£¬¿ÉÒÔÆðµ½ºÜÔÃÄ¿µÄ×°ÊÎЧ¹û¡£

¡¡¡¡¸ø¸÷ÈË¿´ÏÂÎÒÃǼÒÈ«Îݶ¨ÖƵÄÒ¹ñ£¬Ì«Æ¯ÁÁ£¬Ì¨Éϲã´ÎÀ²£¡

¡¡¡¡´²Í·ÅÔ±ß×öÁËÊáױ̨£¬ÉÏÃæ×öÁ˵õ¹ñ£¬Ò²ºÜÊÊÓá£

¡¡¡¡Õâ±ßÊdzø·¿£¬Ãſڻ¹¶¨ÖÆÁËÉÏÏÂÁ½²ãµÄ¹ñ×ÓÄØ£¬ÌØÊâϲ»¶¡£¼ÒÀïÖ»ÒªÓпÕ룬ÎÒÃǶ¼²»ÆÌÕÅ£¬¶¼¶¨ÖÆÁ˹ñ×Ó¡£

¡¡¡¡³ø·¿¿Õ¼äÂùСµÄ£¬¶¨ÖÆÁË¡°U¡±×ÖÐεij÷¹ñ¡£

¡¡¡¡Õâ±ßÊÇÖ÷ÎÔÎÀÉú¼ä£¬½á¹¹ºÜÊǺÏÀí£¬×°ÐÞÒ²ºÜƯÁÁ¡£×öÁËÔ²»¡ÐεĸÉʪÊèÉ¢£¬ÌØÊâ´óÆø¡£

¡¡¡¡Õâ±ßÊǹ«¹²ÎÀÉú¼ä£¬Ò²ÊÇ×ö¸ÉʪÊèÉ¢£¬ÂíͰµÄÃûÄ¿ºÜÊÇϲ»¶¡£ÖÕÓÚ×°ÐÞÍ깤£¬È̲»×¡É¹É¹£¬È«Îݶ¨Öƹñ×ÓºÜÖª×㣬¿ÍÌüµçÊÓÅä¾°Ç½ÌØÊâÊÊÓ㡺ÜÊÇлл±í¸ç°ïÎÒÃÇ×°ÐÞÓëÉè¼ÆÄÇôƯÁÁµÄоÓ£¬È«ÎÝ×°ÐÞ¶¼ºÜÊÇÖª×ã¡£×°ÐÞÕâ¶Îʱ¼äÒ²ÐÁÇÚÀϹ«ÁË£¬¼ÒÀïµÄÖ÷²Ä¶¼ÊÇËûÂòµÄ¡£ÎÒÃÇÍýÏë͸·çµ½ÔÂβ¾Í¿ÉÒÔ°á½øÀ´ÈëסÀ²£¬ÕæµÄºÜÊÇÆÚ´ý£¡½ñÌì¾Í·ÖÏíµ½ÕâÀïÀ²£¬Ï£ÍûÎÒÃǼҵÄ×°ÐÞ£¬Äܸø¸÷ÈË´øÀ´ºÃµÄ×°ÐÞÁé¸Ð£¡


  • 400-999-1569
    Ò»¼ü²¦ºÅ
  • ¶ÌÐÅ×Éѯ
    ¶ÌÐÅ×Éѯ
  • Éó²éµØÍ¼
    Éó²éµØÍ¼
  • ÍøÕ¾µØÍ¼